
電動葫蘆半門式起重機與CD1、MD1等型號的電動葫蘆配套使用,是一種有軌運行的中小型起重機。本產品為一般用途起重機,多用于機械加工車間的物料搬運。下橫梁專用減速機可使起重機內側作業空間更大。
根據其機構特點可分為以下幾種型號:
BMH------單主梁葫蘆式半門機 額定起重量0.5~16t
BMHⅠ----單柱式葫蘆半門機 額定起重量0.5~5t
BMHN-----歐式半門機 額定起重量0.5~10t
MHB型電動葫蘆半門式起重機與CD、MD、等型號的電動葫蘆配套使用,是一種有軌運行的中小型門式起重機。MHB型含義為單梁半門式起重機,其適用起重量:3T、5T、10T、16t、20T;跨度:7.5m、9M、19M、22.5米;起升高度:
6M、9M、12M、18M;工作制度適用A3~A5,工作環境溫度為一25℃~4。℃范圍內。
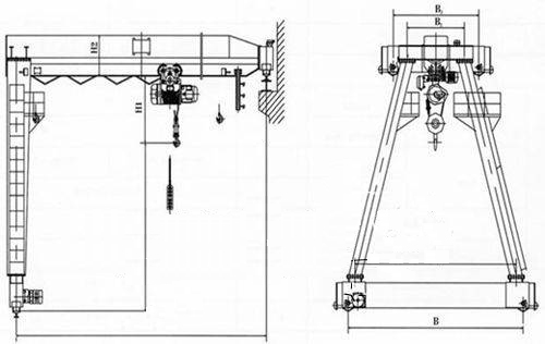
MHB型半門式起重機結構圖紙:
MHB型電動葫蘆半門式起重機操縱形式有無線遙控器、有線地面操縱和操縱室操縱。電動葫蘆半門式起重機為一般用途起重機,多用于一般機械制造、裝配車間和倉庫等場所,用來搬運和裝卸物料,常用于室外、露天場所。
MHB型電動葫蘆半門式起重機不宜在易燃、易爆的介質中或具有很大濕度腐蝕性氣體的場所工作。也不適用于吊運熔化的金屬、有毒物和易燃物的工作 。