

|
起重量 |
t |
5
|
10
|
|||||||||||||||
|
跨度 |
m
|
10.5 |
13.5 |
16.5 |
19.5 |
22.5 |
25.5 |
28.5 |
31.5 |
10.5 |
13.5 |
16.5 |
19.5 |
22.5 |
25.5 |
26.5 |
31.5 |
|
|
起升高度 |
16
|
16
|
||||||||||||||||
|
速度
|
起升
|
m/min
|
2.04
|
2.2
|
||||||||||||||
|
小車
|
20.7
|
20.7
|
||||||||||||||||
|
大車
|
31
|
27.5
|
31
|
27.5
|
||||||||||||||
|
電動機
|
起升
|
型號/kW
|
YB112M-6/2.2
|
YB160M-6/7.5
|
||||||||||||||
|
小車
|
YB112S-6/2.2
|
YB112M-6/2.2
|
||||||||||||||||
|
大車
|
YB132S-6/2×3
|
YB132M-8/2×3
|
YB132S-6/2×3
|
YB132M-8/2×3
|
||||||||||||||
|
重量
|
總重
|
t
|
11 |
12.7 |
14.7 |
17 |
19.6 |
24.2 |
27.4 |
30.5 |
14.2 |
16 |
17.9 |
20.7 |
23.3 |
28.7 |
32.2 |
35.3 |
|
小車
|
1.7
|
3.3
|
||||||||||||||||
|
最大輪壓 |
KN |
63 |
71 |
77.5 |
84 |
90.5 |
104 |
112.5 |
121.5 |
110.5 |
117 |
125.5 |
132 |
139.5 |
155.3 |
164 |
171.3 |
|
|
薦用大車軌道 |
|
38Kg/m
|
43Kg/m
|
|||||||||||||||
|
電源 |
mm
|
三相交流 380V 50Hz
|
三相交流 380V 50Hz
|
|||||||||||||||
|
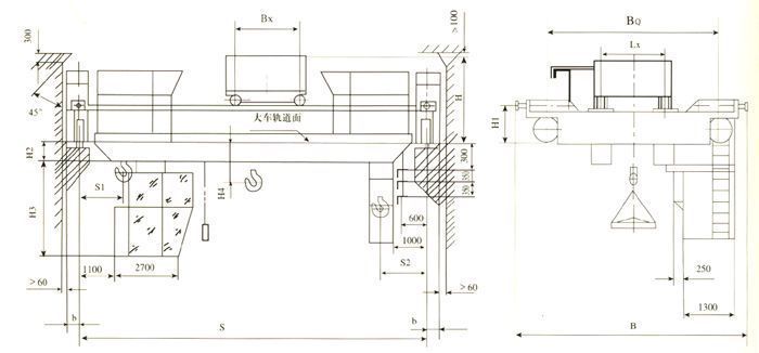
LX |
1400
|
2000
|
||||||||||||||||
|
BQ |
3400
|
3550
|
5000
|
4050
|
5000
|
|||||||||||||
|
Bx |
1100
|
1400
|
||||||||||||||||
|
B |
4340
|
4450
|
5900
|
4990
|
5090
|
5900
|
||||||||||||
|
b |
230
|
230
|
||||||||||||||||
|
H |
1753.5
|
1876
|
1926
|
|||||||||||||||
|
H1 |
725
|
725
|
775
|
|||||||||||||||
|
H2 |
-24 |
126
|
226
|
376
|
526
|
676
|
826
|
976
|
-24 |
126 |
226 |
376
|
526
|
628
|
778
|
928
|
||
|
H3 |
2502 |
2420 |
2370 |
2380
|
2210
|
2502 |
2420 |
2370 |
2380
|
2210
|
||||||||
|
H4 |
44.5
|
544
|
494
|
|||||||||||||||
|
S1 |
800
|
1000
|
||||||||||||||||
|
S2 |
1250
|
1350
|
||||||||||||||||
Related Products
相關產品